H7MF+859 Kuching, Sarawak, Malaysia
Discover a home designed for comfort, convenience, and long-term value. Matang Vista offers single-storey terrace homes built on mixed-zone land, giving you both lifestyle freedom and investment flexibility — all in a calm, family-friendly neighbourhood.
🌿 WHY MATANG VISTA
A Place Where Family, Comfort & Convenience Come Together
Matang Vista is crafted for those who want a practical, cozy home with space to grow. Whether you’re a young couple, a growing family, or looking to downsize into a single-floor lifestyle, this neighbourhood has something for everyone.
You’ll love:
🏡 Practical single-storey design — no stairs, no hassle
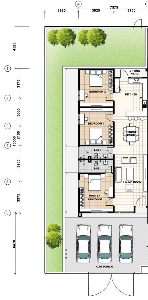
🛏 3 bedrooms | 🚿 2 bathrooms
🚗 Parking for 2–3 cars
📐 Built-up sizes from 979–1194 sqft
🏡 Option of Intermediate or Corner units
🌳 Serene, quiet environment
🔒 Safe, family-friendly community layout
📍 PERFECTLY CONNECTED LOCATION
Quiet When You Need It. Convenient When You Want It.
Located just off Jalan Kopodims, Matang Vista places you within minutes of modern conveniences while surrounding you with nature-inspired calm.
Nearby amenities:
🛒 Supermarkets, eateries & shops
⛽ Petronas Matang Hilir
🏫 Schools & education centres
🌲 Federal Park & Kubah National Park
🚗 A short drive to Kuching City Central
Matang Vista strikes the perfect balance — peaceful living with city access just moments away.
🧭 BUILT FOR YOUR FUTURE
Mixed-Zone Land — More Flexibility for Tomorrow
Matang Vista is developed on mixed-zone land, offering:
✔ Greater flexibility for future use
✔ Stronger long-term value
✔ Ideal for both own stay & investment
A home that serves today while securing your tomorrow.
🏘 PROJECT DETAILS
48-unit low-density neighbourhood
Single-storey terrace homes
99-year land tenure
Expected completion: December 2027
Developer: UrbanPro Development Sdn Bhd
🛋 HOME LAYOUTS
Intermediate Unit
📐 Built-up: 979.52 – 1036.57 sqft
🚗 Parking for 2 cars
🛏 3 bedrooms, 2 bathrooms
Corner Unit
📐 Built-up: 1194.80 sqft
🚗 Parking up to 3 cars
✨ Extra land for gardening, outdoor space, or future extensions
🟢 CALL TO ACTION
Ready to Start Your New Chapter?
Matang Vista is more than a home — it’s a lifestyle upgrade.
Secure your unit today before they’re fully taken.

Immerse yourself in the captivating ambiance of our properties. Book a personalized tour to explore the exquisite beauty and unique features of our property.
Our knowledgeable staff will guide you through the property, answering any questions you may have.
Fully Renovated RM550,000
Added: March 9, 2025
RM1,600 / Monthly
Added: January 18, 2023
From RM688,896
Added: January 30, 2021
🏡 ROYAL RICHMOND RESIDENCES – Where Legacy Meets Luxury
"Real estate is not just about bricks and mortar; it's about building legacies, securing futures, and owning a piece of tomorrow."
Jason LiiPlease enter the 6-digit OTP sent to your email.
Time remaining: 05:00
We use cookies to improve your experience on our site. By using our site, you consent to cookies.
Manage your cookie preferences below:
Essential cookies enable basic functions and are necessary for the proper function of the website.
These cookies are needed for adding comments on this website.
Google reCAPTCHA helps protect websites from spam and abuse by verifying user interactions through challenges.
These cookies are used for managing login functionality on this website.
Statistics cookies collect information anonymously. This information helps us understand how visitors use our website.
Google Analytics is a powerful tool that tracks and analyzes website traffic for informed marketing decisions.
Service URL: policies.google.com (opens in a new window)
Marketing cookies are used to follow visitors to websites. The intention is to show ads that are relevant and engaging to the individual user.
Google Maps is a web mapping service providing satellite imagery, real-time navigation, and location-based information.
Service URL: policies.google.com (opens in a new window)